Future Library06/13
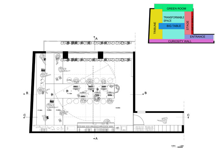
![]() The future library room is organized around two elements; a high table and a tribune. The table, typically a place for work, becomes a surprising toy; it has no legs and appears to be magically hanging from the ceiling. It moves and rotates, assuming different places in the room that can thus transform entirely to accommodate different programs. The tribune, typically a place for relaxing and socializing acts as bookcase and storage space. The table rests on the tribune, becoming an extension of its middle step, therefore acting as a floor to half of the tribune, eliminating prior notions of formality. The unstable combination of the two elements generates innumerous ways of inhabiting the space with constantly shifting notions of where the floor is. The longest wall of the room becomes a ‘cabinet of curiosities’ a constant curiosity teaser, while the wall facing the tribune becomes a communication wall with strong changing graphic identities. This rapidly changing graphic element encourages creativity and constantly reinvents thematic identities for the room. The window side is turned into a green area with plants and pots hanging from the ceiling creating a natural buffer zone towards the city and a surprising exterior seating area inside nature. The only way for library rooms to maintain their raison d' etre in today’s society and to constantly attract people of all ages, is to have a strong, attractive spatial identity and to claim programmatic flexibility. This project thinks that this goal would be most successfully achieved if such a programmatic flexibility became the library’s main identity feature.
status: invited competition client: Stavros Niarchos Foundation program: library reading space area: 80 m2 location: Athens, Greece team: Konstantinos Pantazis, Marianna Rentzou, Yiorgos Pantazis, Ieva Saldauskaite, Alvise Pagnacco, Lefteris Dousis, Chrysanthi Asproulopoulou year: 2013 |








