New Maribor Museum02/10
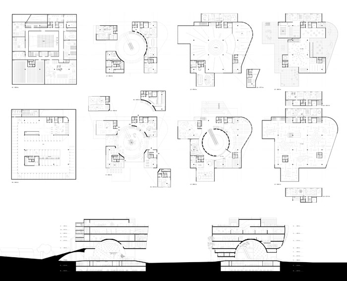
The building aims to affect the overall city scale, whilst confirming the primacy of the historic core. While the building clearly presents itself as a single entity, it also clearly reveals the programmatic elements it is composed of. The Children’s Museum, Creative Industry Centre, Architectural Centre and Catering Area assume ‘ideal’ forms and structures that are attached to each side of the core building Cube that houses the main program.
Each programmatic element capitalizes on the specific qualities of its respective side of the Cube. The four programmatic elements are not restricted to the perimeter of the Cube; they cross and extend towards the interior. The Cube itself, solid at first glance, reveals a generous ground floor topped by an unexpected Dome. This dramatic void is the City’s Living Room, where visitors find information, events and ceremonies are staged and the connections to all programs begin. The northern part of the site is treated as an extension of the masterplan area; an Urban Surface capable of hosting an unlimited variety of cultural events and collective activities. This links the nearby public spaces completing an extensive urban network of open spaces that regenerate the city as a whole.
![]() status: competition
program: urban plan, contemporary art museum, architecture centre, design centre, children’s museum
area: Masterplan 1.5 ha, building 16,900 m2
location: Maribor, Slovenia
team: Konstantinos Pantazis, Marianna Rentzou, Beth Hughes, Konstantina Papanikolaou, Alexia Symvoulidou, Paradisia Manari
year: 2010
|
.jpg)
.jpg)
.jpg)
.jpg)
.jpg)
.jpg)
.jpg)
.jpg)

.jpg)